
CASA FUNDEIRA
A Casa Fundeira foi renovada com um design artístico, contemporâneo e apesar do toque minimalista, é de tal modo confortável que temos a certeza que não vai querer ir embora depois de chegar! Ideal para famílias, grupos de amigos, e quem queira desligar da cidade, e vir trabalhar a partir de casa num oásis no meio da serra!
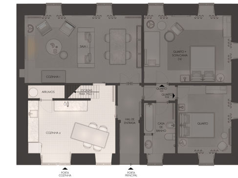
Equipada com todas as comodidades, a Casa Fundeira é composta por 2 suites com salas privativas e 3 quartos todos com cama de casal, 3 casas-de-banho, 2 salas de estar e jantar, 1 cozinha totalmente equipada, e um móvel cozinha absolutamente único e muito pratico dentro da sala de estar, espaços que estão distribuídos por dois pisos ligados por uma escada.
A Casa Fundeira pode receber 8 hospedes, ou lotação máxima de 12 pessoas com a utilização de sofás cama.
Os dois pisos da casa podem ainda ser selados, permitindo que dois grupos distintos possam reservar a casa:
Opção 1:
Piso Térreo com 2 quartos de casal, 1 casa-de-banho, sala de estar e jantar, com móvel de cozinha totalmente equipado (4/5 pessoas)
Opção 2:
Cozinha totalmente equipada com mesa para refeições, no Piso Térreo, e Primeiro Piso com 2 Suites, 2 casas-de-banho, e sala de estar (4/7 pessoas).
-
Lareira
-
Smart TV
-
Sistema de Som Bluetooth para Telemóveis e Tablets
-
Máquina de Café Nespresso
-
Aquecimento Central durante o Inverno
-
Banheira
- Jardim Semi-Privado
- Camas de Casal
-
Chaves Electrónicas com App
-
Wi-Fi Grátis
-
Secadores de Cabelo
-
Lanternas
-
Chapéus de Chuva
-
Vista
-
Cozinha Totalmente Equipada
-
Produtos de higiene pessoal incluídos
DESCRIÇÃO
NÚMERO DE PESSOAS: 8 hospedes (máx 12)
QUARTOS: 4
CASAS DE BANHO: 3
CARACTERÍSTICAS: dois pisos, lareiras, duas salas de estar e jantar, duas cozinhas, frigorífico, pequeno almoço não incluído, mas pode ser requisitado previamente, maquinas de café Nespresso, estacionamento na propriedade, smart TV, Wi-Fi.
Despertar da manhã com o canto dos pássaros! Ou o ladrar dos nossos caes Serra da Estrela!






























